Wo möchten Sie
Besser Wohnen ?

Neubau-Garconniere in Mariatrost + extra Küche+ Balkon, unbefristet

1 Zimmer - 36,99 m2 - Gesamtmiete: € 586.17

Details zum Objekt

In zentraler Lage in der Mariatrosterstraße, etwas nach hinten versetzt und somit in ruhiger Lage, befindet sich die neu renovierte Mietwohnung, die unbefristet vermietet wird! Das Wohngebäude wurde vor kurzem ebenfalls zur Gänze neu saniert.

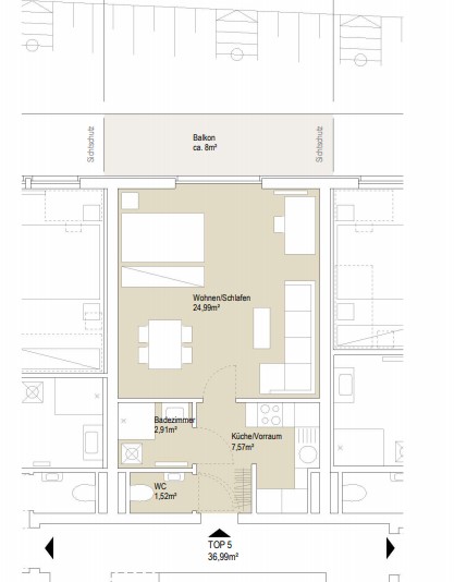
Die 36,99 m2 große Neubau-Wohnung Top 05 liegt im Erdgeschoß und ist bequem mit Lift erreichbar. Sie verfügt über einen ca. 8 m2 großen Balkon. Sie teilt sich in einen Vorraum, einen Wohn-Schlafraum mit Zugang zum Balkon, eine Küchennische mit voll eingerichteter Küchenzeile, ein Badezimmer mit Dusche und ein extra WC.

Ein Kellerraum ist der Wohnung zugeordnet und im Mietpreis inbegriffen, ein Parkplatz kann extra dazu gemietet werden.

In unmittelbarer Nähe finden Sie fußläufig erreichbar Kindergarten, Volksschule und Neue Mittelschule, Ärzte und Apotheke sowie Straßenbahn- und Bushaltestelle und mehrere Supermärkte. Zahlreiche Sport- und Freizeitanlagen und Naherholungsgebiete wie der Leechwald bieten abwechslungsreiche Möglichkeiten zur Freizeitgestaltung.


Die Gesamtmiete setzt sich zusammen aus Hauptmietzins, Akontierung für Betriebskosten und Umsatzsteuer.

Die Kaution beträgt 3 Brutto-Monatsmieten.

Mietbeginn: ab sofort

Mietdauer: unbefristet

provisionsfrei


Weitere interessante Miet- und Eigentumsobjekte finden Sie auf unserer Homepage www.bewo.at. Wir freuen uns auf Ihren Besuch

Grundriss > Download
Objekt Typ
Gebraucht-Wohnung
Standort
Mariatrosterstraße 158 , 8044 Graz
Fläche
36,99 m2
Balkon
8,00 m2
Kellerfläche
2,70 m2
Räume
1
Badezimmer
1
Energieklasse
C
HWB-Wert
70,00 kWh/m2a

Ausstattung

  • Balkon
  • Keller

Entfernungen

Kindergarten
900 m
Straßenbahn
150 m
Volksschule
750 m
Apotheke
700 m
Supermarkt
200 m
Fitness-Center
700 m
Miete
Ansprechpartnerin
Markus Lackner · markus.lackner@bewo.at
T: +43 316 82 02 87 · M: +43 664 183 2182
Ansprechpartnerin