Wo möchten Sie
Besser Wohnen ?

leistbare Familienwohnung: 3-Zimmer Neubauwohnung mit Balkon!

3 Zimmer - 61,80 m2 - Gesamtmiete: € 855.05

Details zum Objekt

WOHNEN AN DEN ARKADEN: modernes, leistbares Wohnen mitten in den Reininghaus-Gründen!

Das moderne Wohngebäude "An den Arkaden" liegt direkt an der Esplanade, der zentralen Fußgängerzone in den Reininghaus-Gründen. Das 4- bis 9-stöckige Wohngebäude zeichnet sich durch moderne Architektur mit begrünten Dächern und großzügigen allgemeinen Freiflächen aus. Dem Wohngebäude steht eine Tiefgarage zur Verfügung, in der nach Bedarf Stellplätze angemietet werden können.

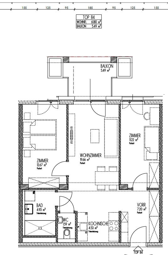
Die Neubau Wohnung Top 84 liegt im 5. Obergeschoss und ist bequem per Lift erreichbar. Sie ist nach Osten ausgerichtet und verfügt über ein großzügiges, ca. 20 m2 großes Wohn-Esszimmer, eine Kochnische inkl. voll eingerichteter Küchenzeile (mit AEG Küchengeräten), zwei Zimmer, ein Bad mit Walk-In Dusche, Sprossenheizkörper, Waschmaschinenanschluss, ein extra WC und einen Vorraum. Zur Wohnung gehört ein ca. 5 m2 großer östlichen Balkon, der vom Wohn-Esszimmer aus begehbar ist.

Die Wohnung wird mittels Fernwärme über eine Fußbodenheizung beheizt.

Ein Kellerabteil, das für zusätzlichen Stauraum sorgt, ist der Wohnung zugeordnet und im Mietpreis inbegriffen, ein Tiefgaragen-Stellplatz in der hauseigenen Tiefgarage kann optional angemietet werden. Des weiteren stehen den Bewohnern eine Vielzahl an Fahrrad-Abstellplätzen zur Verfügung.


Die Gesamtmiete setzt sich zusammen aus Hauptmietzins, Akontierung für Betriebskosten und Umsatzsteuer.

Die Kaution beträgt 3 Brutto-Monatsmieten.

beziehbar ab 01.06.2026


Gerne beraten wir Sie bei der Auswahl der für Sie optimalen Mietwohnung - genießen auch Sie in Zukunft den modernen, neuen Stadtteil Reininghaus-Gründe!


DAS BESONDERE AUF EINEN BLICK:

  • qualitativ hochwertige Neubauwohnung
  • inkl. mit AEG Marken Geräten ausgestattete Küchenzeile
  • hochwertige Sanitärausstattung: Marken Laufen, Geberit, Hans-Grohe
  • Parkettböden
  • 3-fach verglaste Fenster-Elemente
  • Fußbodenheizung (Fernwärme)
  • großzügige allgemeine Freiflächen
  • Balkone und Terrassen mit eigenen Wasseranschlüssen
  • optimale Infrastruktur
  • inkl. Kellerabteilen, Lift, Fahrradabstellplätzen
  • Tiefgarage, in der TG-Plätze optional angemietet werden können
  • Straßenbahnhaltestelle der Linie 4 in unmittelbarer Nähe
  • Bushaltestelle der Linien 65, 66 in unmittelbarer Nähe
  • provisionsfreie Vermietung


BEWO-Verkaufs-Service: Sie wollen eine Wohnung, ein Haus, ein Grundstück verkaufen? Gerne übernimmt unser erfahrenes Vertriebsteam die professionelle Vermarktung Ihrer Immobilie. Profitieren Sie dabei von unserer langjährigen Erfahrung, unseren vielfältigen Verkaufskanälen und Vermarktungsmaßnahmen. Unser Vertriebsteam steht für Ihre Fragen gerne zur Verfügung, kontaktieren Sie uns unter vertrieb@bewo.at oder unter der Tel.Nr. 0316/870285.

Grundriss > Download
Objekt Typ
Gebraucht-Wohnung
Standort
Unesco Esplanade 4 , 8020 Graz
Fläche
61,80 m2
Balkon
5,49 m2
Kellerfläche
2,33 m2
Räume
3
Badezimmer
1
Energieklasse
A
HWB-Wert
20,00 kWh/m2a

Ausstattung

  • Balkon
  • Keller

Entfernungen

Kindergarten
200 m
Bäckerei
250 m
Straßenbahn
100 m
Supermarkt
100 m
Miete
Ansprechpartnerin
Markus Lackner · markus.lackner@bewo.at
T: +43 316 82 02 87 · M: +43 664 183 2182
Ansprechpartnerin