Wo möchten Sie
Besser Wohnen ?

moderne 2-Zi Neubauwohnung mit großer Loggia

2 Zimmer - 59,49 m2 - Gesamtmiete: € 858.37

Details zum Objekt

In zentraler Lage in der Reininghausstraße, mitten im aufstrebenden Grazer Bezirk Eggenberg, befindet sich dieses modernes Neubau-Projekt, das sich durch moderne Architektur und großzügige Frei- und Grünflächen auszeichnet!

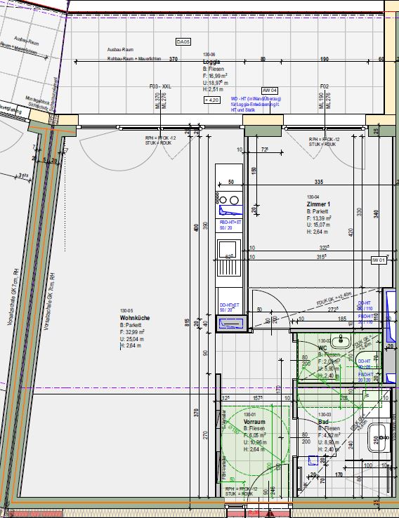
Die Neubau-Wohnung Top 101 liegt im 1. Obergeschoss (mit Lift) und verfügt über eine ca. 17 m² große Loggia die den Wohnbereich noch zusätzlich vergrößert. Raumaufteilung: Ein ca. 33 m² großes, helles Wohn-Esszimmer mit voll eingerichteter Küchenzeile (inkl. Gorenje Küchengeräten), ein Schlafzimmer, ein Bad mit Dusche, ein separates WC sowie einen Vorraum. Die westseitige Loggia ist von beiden Zimmern aus begehbar.

Die Wohnung ist in den begrünten Innenhof ausgerichtet und garantiert somit ein helles, freundliches Wohnklima mit schönem Ausblick.

Ein Kellerabteil ist der Wohnung zugeordnet und im Mietpreis inbegriffen, ein Tiefgaragen-Stellplatz in der hauseigenen Tiefgarage kann optional angemietet werden.

Die Gesamtmiete setzt sich zusammen aus Hauptmietzins, Akontierung für Betriebskosten und Umsatzsteuer.

Die Kaution beträgt 3 Brutto-Monatsmieten.


DAS BESONDERE AUF EINEN BLICK:

  • qualitativ hochwertige Neubauwohnung
  • inkl. mit Gorenje-Marken Geräten ausgestattete Küchenzeile
  • großzügige Freiflächen und allgemeine Grünflächen
  • optimale Infrastruktur
  • inkl. Kellerabteilen, Lift, Fahrradabstellplätzen
  • hauseigene Tiefgarage, in der TG-Plätze optional angemietet werden können
  • Befristung: unbefristet
  • Bezug: ab sofort
  • provisionsfrei


Nachbarschaft Hoch 7:

Die Adresse Reininghausstraße 80 im 14. Grazer Stadtbezirk Eggenberg überzeugt durch ihre zentrale Lage und perfekte Infrastruktur. Sie finden hier in unmittelbarer Nähe alle wichtigen Einrichtungen des täglichen Lebens. Gleichzeitig ist hier auch eine sehr gute Verkehrsanbindung, sowohl mit dem Auto als auch mit den öffentlichen Verkehrsmitteln, gegeben.

In unmittelbarer Nähe befinden sich:

  • Straßenbahnhaltestellen - für perfekte Mobilität
  • Supermärkte - für alles was man täglich braucht
  • Apotheke – für Ihre Gesundheit
  • Restaurants – man will ja nicht immer selbst kochen
  • Kindergärten, Volksschule, Neue Mittelschule – für die jüngeren Bewohner
  • FH JOANNEUM – für eine fundierte Aus- und Weiterbildung
  • Sport- und Freizeitanlagen – für den perfekten Ausgleich

Weitere interessante Miet- und Eigentumsobjekte finden Sie auf unserer Homepage www.bewo.at. Wir freuen uns auf Ihren Besuch!

Grundriss > Download
Objekt Typ
Gebraucht-Wohnung
Standort
Reininghausstraße 80-82 , 8020 Graz
Fläche
59,49 m2
Kellerfläche
3,00 m2
Räume
2
Badezimmer
1
Energieklasse
A+
HWB-Wert
51,00 kWh/m2a

Ausstattung

  • Loggia
  • Keller

Entfernungen

Kindergarten
800 m
Bäckerei
300 m
Straßenbahn
400 m
Volksschule
1000 m
Apotheke
700 m
Supermarkt
300 m
Miete
Ansprechpartnerin
Markus Lackner · markus.lackner@bewo.at
T: +43 316 82 02 87-06 · M: +43 664 183 2182
Ansprechpartnerin